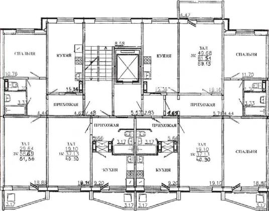
Продается 3-х комн. квартира, 89.15 кв.м., 4/9 эт
Обзор№ - 118
| Стоимость | 2 000 000 |
|---|---|
| Ремонт | Черновая отделка |
| Балкон | Лоджия |
| Комнат в квартире | 3 |
| Площадь, кв.м. | 89.15 |
| Площадь кухни, кв.м. | 16 |
| Этаж | 4 |
| Этажность | 9 |
| Материал стен | Панельный |
Адрес
| Населенный пункт | Саратов |
|---|---|
| Район города | Кировский |
| Улица | улица им Уфимцева К.Г. |
ЖК "ВИШЕНКА". Дом сдан, заселяется. Фасад стен утеплен. Две лоджии, кухня 16м! Окна на две стороны. Установлены пластиковые окна и биметаллические радиаторы отопления. Двор огорожен и благоустроен детской площадкой. Очень удобное для проживания место где расположены детские сады, школы, сбербанк, рынок "Солнечный". Помощь в оформлении ипотеки, подходит материнский капитал.





